
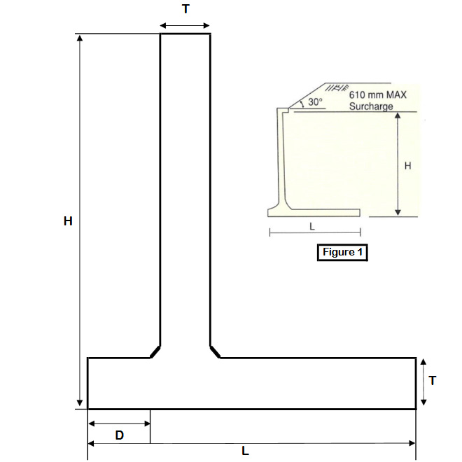
L Shape
Design Criteria accordance with the following condition
Product Advantages
Product Development
| H mm |
L mm |
D mm |
T mm |
Weight(±) tonne |
| 1200 1800 1950 3200 |
1100 1550 2100 2450 |
150 250 300 450 |
100 150 150 200 |
0.55 1.10 1.30 2.70 |
*Scroll to the right to see more details.
* Standard length = 1000mm